Farmhouse Perugino's Lands, Città della Pieve, Perugia - Umbria

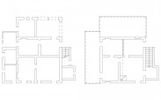
Country house with great potential located in a dominant, extremely isolated and panoramic position, for sale in Città della Pieve. The ruin is surrounded by the Pievese countryside and enjoys a beautiful 360° view of nature. It is on two levels of approx. 80 square meters each for a total of approx. 160 square meters and has approx. 12 hectares of land, 6 of which are used as olive groves with approx. 410 plants in production, while the remaining 6 are intended for woodland. To access the property, there is a dirt road of approx. 600 meters from the state road. Adjacent to the main building, there is an ancient pigsty of approx. 15 square meters, a size which, during the restoration, could be incorporated into the residential building, thus allowing an extension. The property is located in a strategic position, not far from the beautiful Città della Pieve but also a few minutes from Perugia and the largest shopping centers in the area.

Price: 520,000 Euro